Приточно-вытяжная вентиляционная установка с рекуперацией тепла и сохранением влаги. Оснащается электрическим нагревателем и двухступенчатым рекуператором, который обеспечивает работу без преднагрева при уличной температуре до -25 °C.
КОМПЛЕКТАЦИЯ УСТАНОВКИ:
Стальной корпус с теплоизоляцией 50 мм
Двухступенчатый энтальпийный рекуператор
Электрический нагреватель (позисторная керамика)
Фильтры тонкой очистки класса F5 (2 шт.)
Система защиты от обмерзания
ЕС-вентиляторы
Датчики температуры уличного и приточного воздуха
Датчик температуры и влажности вытяжного воздуха
Термоконтакт
Автоматика производства TURKOV
Пульт управления с сенсорным дисплеем
Wi-Fi модуль для управления через мобильное приложение
Подключение к Умному дому и управление с Яндекс станции
ПО СПЕЦЗАКАЗУ:
L, T и Y-исполнение
Блок преднагрева
Внешний жидкостный нагреватель
Двойной нагреватель
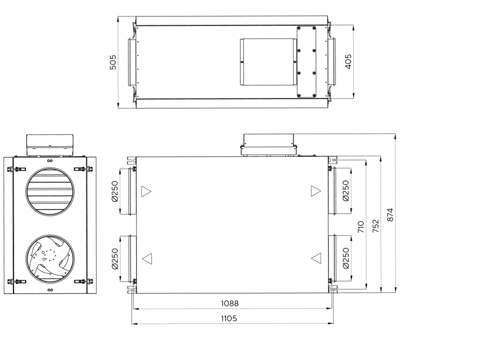
ГАБАРИТНЫЕ РАЗМЕРЫ:
Габариты ДxШxВ (мм) 1088х874х505
Подключение воздуховодов (мм) Ø 250
Толщина корпуса (мм) 50
Зона обслуживания фильтров (мм) 500
Необходимо уточнить срок доставки у продавца
Некоторые позиции могут отсутствовать на складе и изготавливаются на производстве



