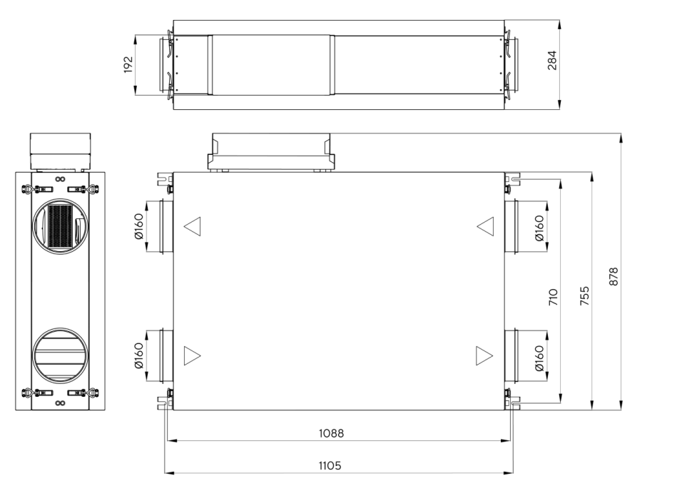
Приточно-вытяжная вентиляционная установка с рекуперацией тепла и сохранением влаги. Оснащается электрическим нагревателем и двухступенчатым рекуператором, который обеспечивает работу без преднагрева при уличной температуре до -25 °C.
Стальной корпус с теплоизоляцией 50 мм; толщина крышек — 30 мм
Двухступенчатый энтальпийный рекуператор
Электрический нагреватель (позисторная керамика)
Фильтры тонкой очистки класса F5 (2 шт.)
Система защиты от обмерзания
ЕС-вентиляторы
Датчики температуры уличного и приточного воздуха
Датчик температуры и влажности вытяжного воздуха
Термоконтакт
Автоматика производства TURKOV
Пульт управления с сенсорным дисплеем
Wi-Fi модуль для управления через мобильное приложение
Подключение к Умному дому и управление с Яндекс станции
По спецзаказу:
L, T, F и Y-исполнение
Блок преднагрева
Необходимо уточнить срок доставки у продавца
Некоторые позиции могут отсутствовать на складе и изготавливаются на производстве




